
安康绿申建筑科技有限公司
安康绿申建筑科技有限公司是陕南第一家专业从事轻钢别墅研发、设计、生产、施工和后期维护的专业化集成化公司,成立于2017 年6月,注册资金5000万元,旗下控股公司安康班鲁造建筑科技有限公司、安康锐翔明建筑科技有限公司、湖南有色环保建材有限公司。现拥有高级轻钢别墅设计师6名、高级建筑工程师9名、配套技术人员150人,员工1000 多人。引进欧美轻钢别墅生产安装体系,拥有国际一流生产设备与技术。公司致力于绿色房屋、生态房屋、智慧房屋、被动式建筑的研发,主推高端设计师个人品牌设计风格,完美私人定制和个性化服务。
项目效果图
↓↓↓

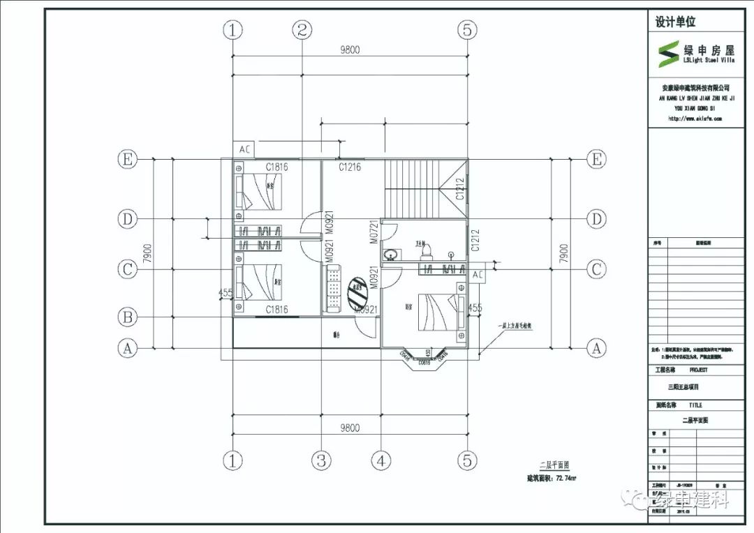
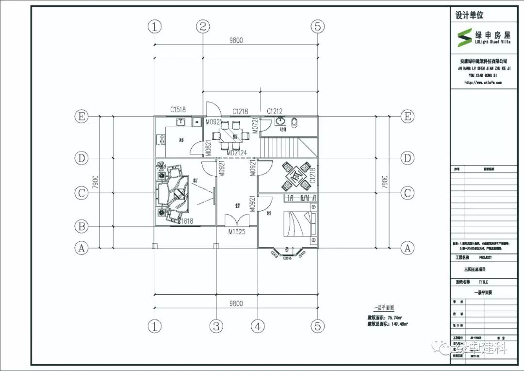
类型:私人订制
面积:149.48㎡
平面图
↓↓↓

现场施工照片
↓↓↓

绿申建科在别墅设计、施工工艺、施工流程、验收节点都力求严苛标准,做到每个细节实现完美落地。

一层墙体拼接

主体完工

感谢业主对安康绿申建筑科技有限公司的信任,绿申建科多年来靠口碑相传吸引客户,靠过硬的工地质量和精湛的施工工艺赢得客户,绿申建科一路走来珍视每一位客户的选择和认可,为打造理想的家居生活而努力着,后期的施工我们会更加用心以待,欢迎业主们随时监督!

“绿申”集团公司简介
立业之本: 做第一、做唯一、做安全、做精品、做口碑、做文化!
中国永久房屋匠心搭建引领者——“绿申建科”,安康绿申建筑科技有限公司是陕南第一家专业从事轻钢别墅研发、设计、生产、施工和后期维护的专业化集成化公司,成立于2017年6月,注册资金5000万元,现拥有一级建筑别墅设计师6名、高级建设施工人员9名、配套技术人员150人,员工300多人。引进欧美轻钢别墅生产安装体系,拥有国际一流生产设备与技术。
公司致力于绿色房屋、生态房屋、智慧房屋、被动式建筑的研发,主推高端设计师个人品牌设计风格,完美私人定制和个性化服务。现在拥有三个子品牌:“绿申房屋”“鲁班建造”“锐翔明”;目前已形成了舒适型、温馨型、轻奢型、豪华型、合家欢(双拼、联排、院子)、古典型(中式、美式、欧式、韩式官邸、日式)六大系列产品77种设计风格,百年质保,安心智选!
公司一贯遵循“以和为贵、以人为本”的经营管理理念,培养大师级的设计队伍、高素质的专业生产、安装技术队伍、视顾客为上帝的服务理念, 设计生产部门全方位实现计算机CAD 专业设计,实施CIS客户满意工程赢得客户的满意与信赖、口碑与传播。
公司引进多台新西兰高速轻钢龙骨机,生产基地分布国内多地,多套设计软件系统,拥有国内一流的软硬件条件。行业内独有的抗冲击实心墙,抗瞬间冲击力度1000KG,抗9级以上地震,抗13级以上台风,自然调节空气湿度、自然冬暖夏凉,隔音效果在70分贝以上,超高宁静指数;不需要装空调、空气净化器、空气加湿器、地暖等设备设施;实心墙体原料来源于国企五矿湖南有色环保建材有限公司(为确保原材料品质,公司已经参股),镀铝锌钢构来源于国企攀枝花钢铁集团公司(为确保原材料品质,公司已经参股),材料品质均从源头控制。拥有三千多平米厂房,跟国内外各大品牌材料签订战略合作协议。
公司愿与国内外有住宅需求的单位及个人、各类建材供应厂家及研发机构、各施工单位及各界朋友广泛合作,共同推动装配住宅产业化、低碳化进程,以独特的优势、卓越的品质、亲民的价格、优质的产品、周到的服务和良好的信誉惠及客户,回报社会,为打造绿色房屋、生态房屋、智慧房屋,提高人类居住品质而不懈努力和奋斗不止。
公司已在秦巴地区形成样板市场,覆盖安康、汉中、达州、万源、万州、十堰、商洛、恩施、宜昌、张家界、湘西等。计划在全国239个地级市布局和建立业务子公司(目前已在陕西西安、山西运城、河南禹州、四川乐山、重庆丰都、湖南保靖等地设立业务子公司),形成庞大而密集的业务网络进行区域精耕,运营模式:网络化+本土化;我们在两年内完成上市规划,目前由普华永道提供财务服务,盈科律师事务所提供法务服务,中信泰富提供券商服务和股改计划,公司预计2021年在香港创业板上市;三年内预计产值达到10亿元,初具有现代化企业规模;十年内预计产值超1000亿,形成一个全产业链的规模化、协同化、集约化、集团化的现代化企业,成为中国知名的永久房屋建造企业。
同时公司规划聚焦在陕南地区,根据各地地域文化、风土人情和地貌特征,打造多个文旅地标,如金珠殿、智慧之乡、紫阳宫、太极城、女娲神谷等,形成集旅游、休闲、疗养、养生、养老等于一体的旅居颐养基地;打造集多种建造风格的轻钢博物馆;孕育成熟的运营体系形成良好的经济效益后,辐射全国28个道场(如四大书院、四大佛教名山、鬼谷子道场、老子道场、孔子故里等),激活全国28个道场,深度经营“道场+颐养基地”的模式,深耕文化旅游产业及相关产业。
公司长期诚招区域代理商、平台合伙人、众筹合伙人、创始合伙人和战略合伙人,共享轻钢别墅、轻钢豪宅和装配房屋行业发展的红利,愿携手全国各地的朋友无界合作,共生组织、共享收益、共谋发展、共创辉煌!做真正的“美丽中国,美丽乡村”践行者!
企业文化:
1、企业核心价值观:务实 精当 沟通 谦逊
2、企业使命:为民众提供尚品房屋、为员工提供展业平台、为企业谋求持续发展、为社会创造荣耀财富。
3、企业愿景:建得轻钢别墅千万间,大庇天下名士俱欢颜!
3、服务宗旨:以客户为中心——创新设计、精心施工、持续维护、极致服务。
4、业务范围:家庭别墅、别致露营房、乡村度假酒店、特色会所、品味公寓、安宁学校、精致办公楼等定制规划、设计施工、装饰装修、家居家具、园林景观一条龙全方位整体解决方案,让业主享有管家级服务。
5、产品理念:性能卓越、节能低碳、绿色环保、智能宜居、和谐美观。

