
岳峰君近日获悉,位于福州市晋安区岳峰镇的福州市鹤林新城小学新校区最新规划方案,目前正在福州市自然资源和规划局官网公示,公示时间为10月23日至10月31日。

鹤林新城小学新校区
新规划关键点
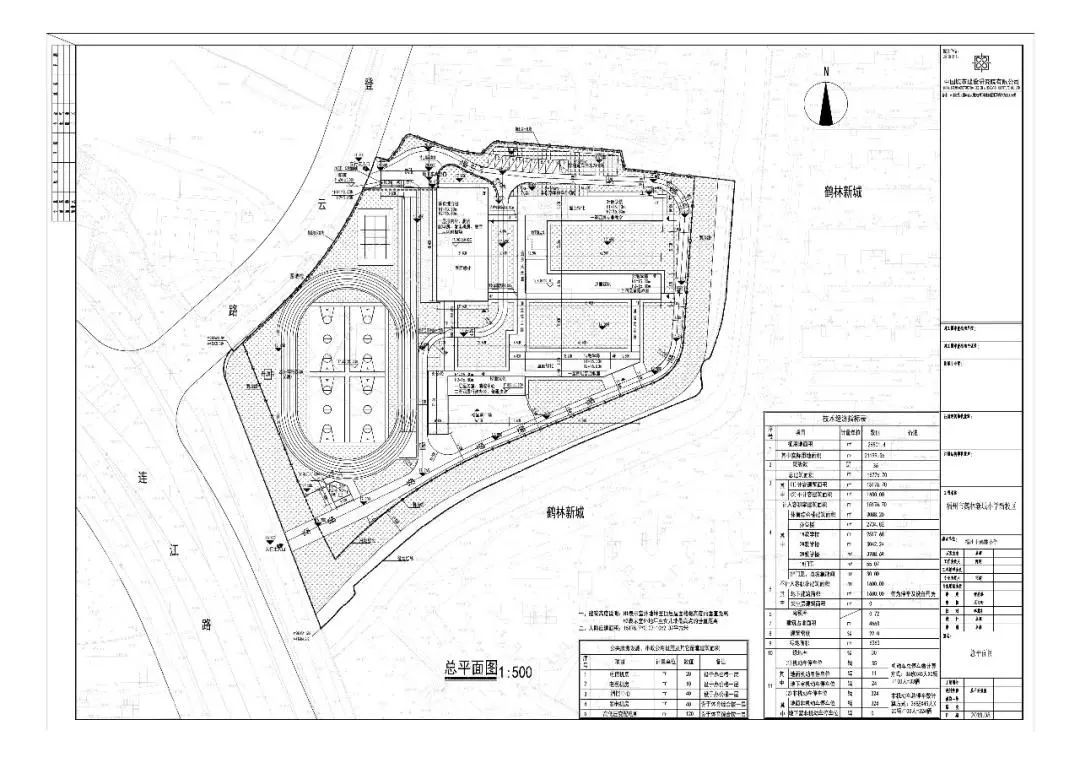
调整连廊及楼梯位置、扩大学生交通疏散空间、取消行政办公楼的钟楼等。
调整后方案总建筑面积由原16383.48平方米调整为16776.7平方米,计容建筑面积由14876.72平方米调整为15176.7平方米,相应的容积率由0.7调整为0.72,调整后规划指标仍满足该项目规划设计条件要求。
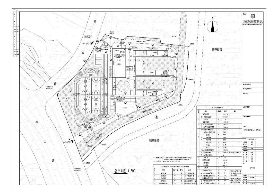
原批总平面规划方案

拟调整总平面规划方案

【新校规划小档案】1.地址:新校建设项目位于晋安区登云路以南、连江路以东。
2.办学规模:规划建设36个班级,建成后可提供1620个小学学位。
3.对口中学:根据福州三中晋安校区的对口划片方案,新校对口该中学。
编辑:王杨林
综合:
福州市自然资源和规划局、福州新闻网

点击上图 识别二维码关注最新资讯、实用信息、权威发布,一切尽在“走近岳峰”!点击上图,长按识别二维码,关注我们!
发送关键词“垃圾分类”给我们,获取官方最新权威发布的《福州市生活垃圾分类投放指南》(含简易版、详细版两个版本)!
发送关键词“最美阳台”给我们,获取岳峰镇“最美阳台”评选结果。
转载请联系我们,并注明来源:“走近岳峰”微信公众号。