

说在前面:这次给大家带来的是浙江大学10年快题真题解析。通过此题,我们可以对快题中的造型要有一定的掌握。我们在画建筑快题的时候,一定要注意任务书给的题目和最终效果图的呈现,即建筑性格。我们在画效果图的时候一定要注意建筑性格,不能什么都画成一个类型的效果图。就本题来说,我们完全可以把造型画的奔放一点,体现出结构的张力等,从而体现公交场站的建筑性格。

2010年工大建筑快题任务书

优秀案例一览

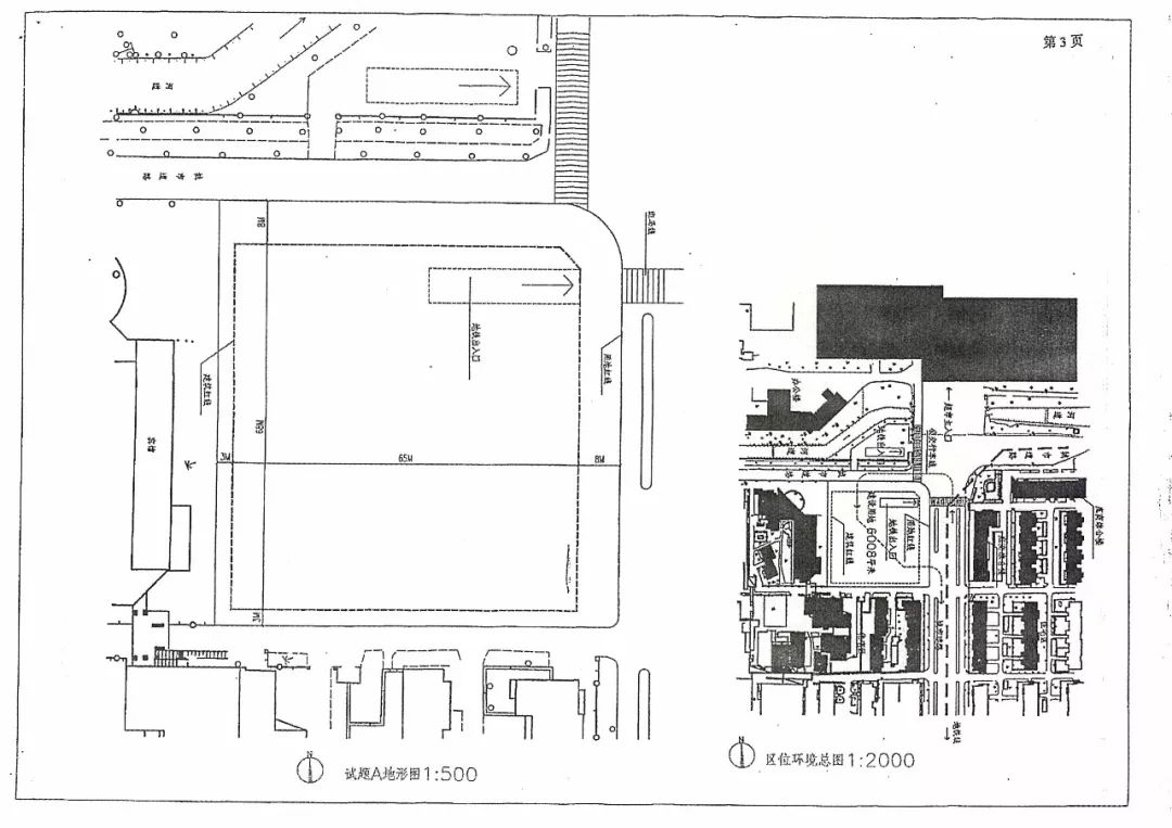
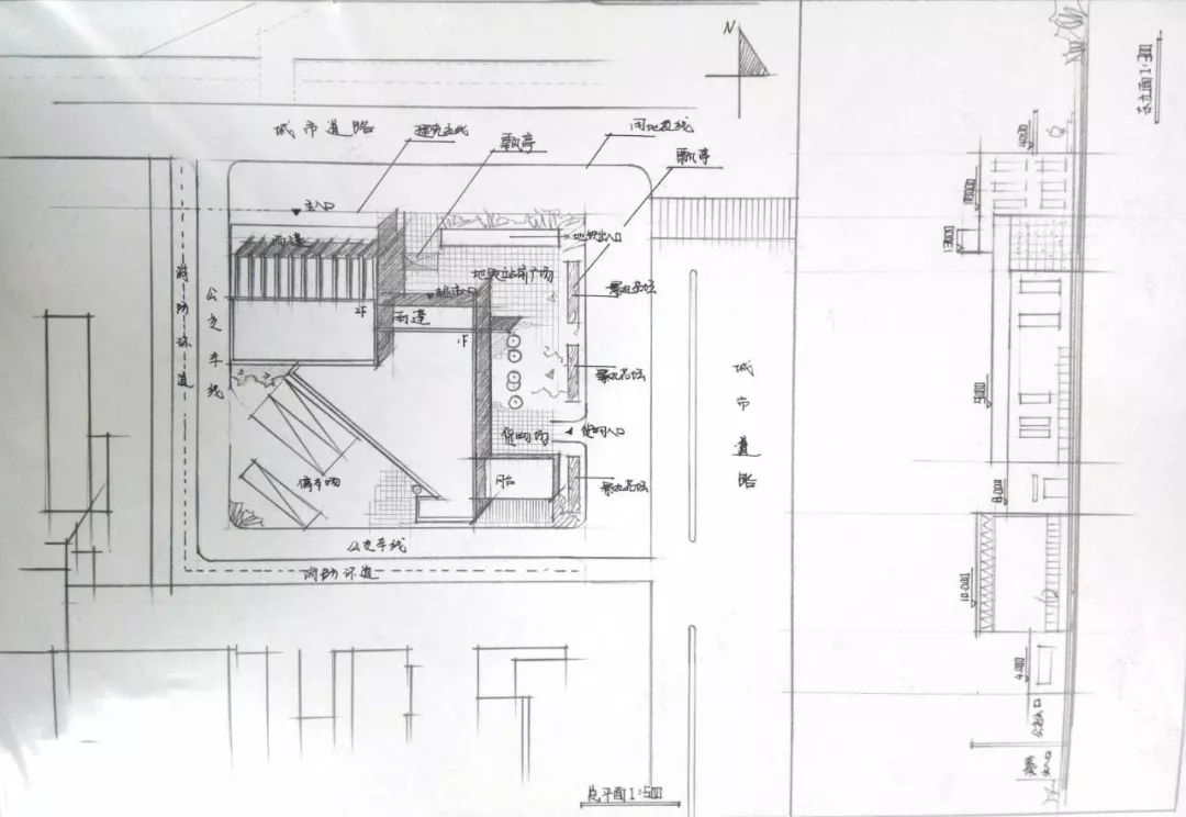
总平面

一层平面

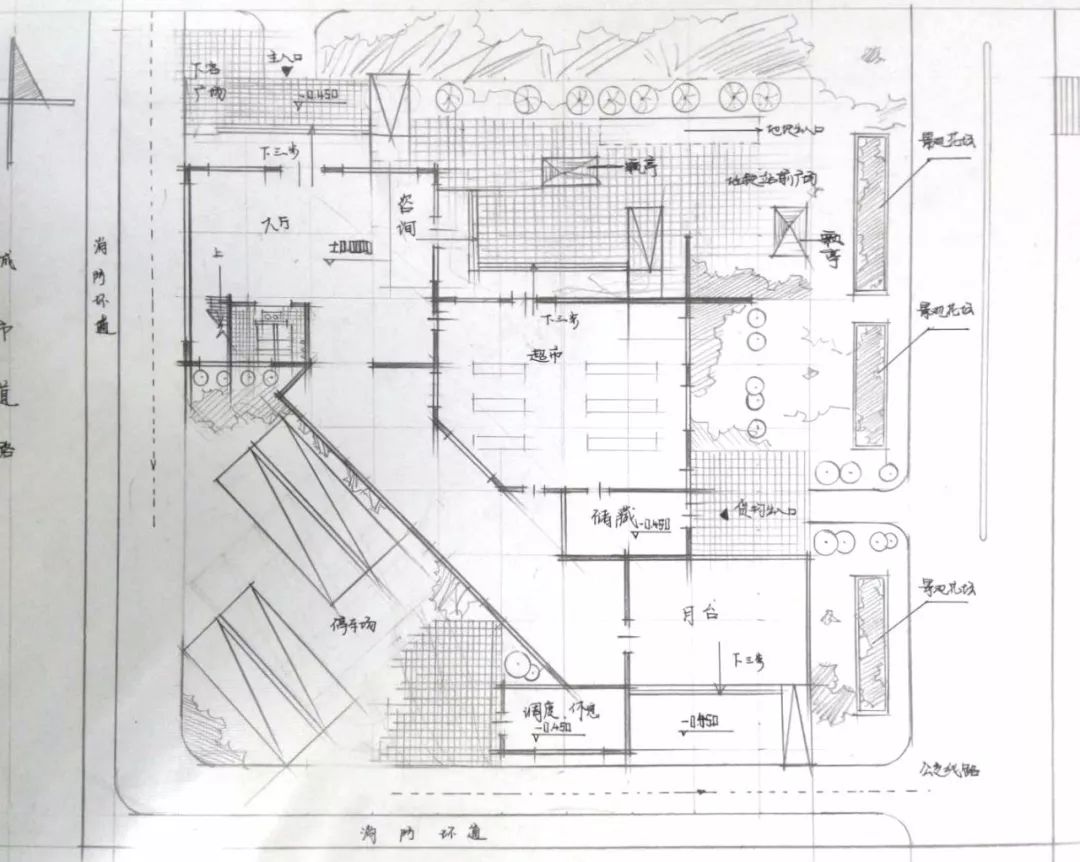
效果图

任务书解析
视频解析
建议wifi下观看

考察点在哪:车站流线的合理布置和造型设计
10年的公交车站设计这题,未免不会让人联想到18年快题中有一道小题-公交站台设计。这里大家注意一下,10年的快题名称更确切的讲,可以叫做公交场站设计,而区别于18年的公交站台(公交中途站)。
设计内容:
1.公交服务厅
2.办公管理用房
3.小型购物超市
4.上、下车候车空间
对于本题,我们可以根据任务书的要求来寻找思路。仔细阅读任务书可以这样去总结:沿着自己平时坐公交的体验去做这题-从流线出发。沿着这个思路去做,就会大体的知道功能分区在场地里面的大体分布。

加上前面的基本功能关系和思路分析,我们可以排出下图的排布图。所以我们可以确定,在功能区域以外的地方,就是我们的公共交流区和各个功能的连接区域。其余地方的地方我们用来做广场,也可结合机动车停车布置。建筑内的流线。建筑内的流线有以下几条,分别是乘客从大厅——月台——上车、乘客从大厅——超市或乘客直接由广场——超市、乘客从下车——出站、乘客从下车——大厅——月台——上车、超市后勤人员——超市后勤区、办公人员——办公室、司机——休息室。中间插入厕所、交通核、休息处等必要元素。

对于此题,主要可以分为三条流线。
1.办公流线(蓝色)
2.乘客流线(红色)
3.司机流线(紫色)
功能分区以外的场地则是连接各块的公共场地。

一层平面

总平面

建筑的造型。关于造型一块,原则就是三点:能与平面对应、能突出建筑性格、美观。第一点是基础,也是我们做造型的基本点,第二点的建筑性格,可以作为我们做造型的切入点效果图

相关案例
实际案例- 公交车站 / DTR Studio
巴埃萨的新巴士站是由一个大的容纳四方游客的遮蔽所。空间虽然经过设计,但在视觉上是开放的把自己融入城市中。Avda Puche Pardo对面的立面相对不透明,就像城市的塑造者。而南立面则是相反的,甚至流线都是朝着未来的公园开放的。在这个大建筑下面有8个巴士码头,和相应的等候区。该建筑是由两个大的白色混凝土屏幕围合,屏幕切开了建筑的剖面并区别干预。受控访问入口的室内区域显示为一个玻璃盒子,它提供了不同的服务给旅客。该方案是通过三个不同的区域组织:巴士区,室内乘客区和户外乘客区。
透视图

一层平面图

剖面图

实际案例-维尔纽斯国际机场的公交站
新公交站的位置是经过客户确认的运输方案而选择的,所以公共汽车站位于航站楼的左端,它的一端几乎与汽车坡道相连。为了避免对现有的不同航站楼建筑的控制和改造,公交站选择了简约的原有的清水混凝土材料。它的雕刻形式和所有的计划元素都是在对角线的方向上的方向,朝向巴士到达的方向。它的后墙用于分隔公共交通和 VIP 区,在白天,通过狭窄的垂直开口让一些自然的阳光从东南方向进入。在夜间在寒冷的混凝土表面,在公共汽车的内层,公交站被温暖的光线所突出。

也许你还感兴趣
考研红榜:2019杭州校区城乡规划考研红榜!包揽浙江省高校全部第一!(点击图片)

建筑快题作品:2019杭州校区建筑快题方案优秀作品(点击图片)

浙大建筑2019真题解析:浙江大学2019年最新真题解析回忆版(点击图片)

优秀作品分享:2019杭州校区城乡规划优秀快题作品分享(点击图片)

浙大规划2018真题解析:浙江大学2018年最新真题解析回忆版(点击图片)

浙大规划考研
【今晚7点】20浙大规划考研理论导学先行公开课—历年理论真题分析与针对性复习方法—最少提高10分的公益必听课!
【经验分享】19浙江大学规划初试总分第一399!复试第一!丁学长考研攻略!
【经验分享】19浙大规划初试总分第三389林学姐AND总分第五张学姐371考研攻略!
【经验分享】19浙江大学规划初试总分第四372徐学姐考研攻略!
【抢鲜版】2019浙江大学城市规划原理真题回忆版+答案解析!
【理论+快题】2019浙江大学规划考研全年定向陪跑课程计划!
【研路漫漫】浙大10年快题控规+修规解析
【理论解析】浙江大学2016/2017年规划原理解析,文末视频赠送!
考研锦鲤丨浙大规划原理考研公益课—历年真题解析!
【干货】浙大规划历年快题解析合集!献给考研路上的你!
【快题解析系列 03】—浙江大学2018快题真题权威解析!【剧情不够,回忆来凑】
【2018新的一年,新的起航】浙大03年快题—如何从宏观角度考虑快题中用地布局
【浙大控规冲刺】浙大2011年控规快题AND控规快题总结
【浙大专题系列】看看浙大08年快题考的什么?
【浙大专题系列】控规图则的画法!
【浙大专题系列】一起画画浙大07年快题吧!
【有人@你】浙大03年快题解析,从整体到每一根线条!!
浙大建筑考研
建筑快题解析 | 工大2016建筑快题真题解析!学生创新实践中心设计
杭州校区建筑考研快题班结课回顾 | 研路漫漫,不负今夏。风雨亦相伴!
【建筑快题解析】2019浙江大学建筑快题解析!AND独家高分146第一名方案huan
【建筑快题】2017浙大建筑快题真题普陀山扩建解析!135分方案还原!
建筑快题解析 | 浙大2016建筑快题真题回忆与解析!纯干货,建议收藏!
【建筑快题解析】2018浙大建筑6小时三快题真题解析!140分方案还原,三个小快题系统剖析!
【浙大建筑考研】2019浙江大学建筑快题140分王学长考研经验干货分享!!
【建筑快题解析】2019浙江大学建筑快题解析!AND独家高分146第一名方案huan
【建筑考研】19浙江工业大学建筑初试、复试快题第二139!张JW学姐考研攻略!
【经验分享】浙江农林大学建筑学考研初试总分第一名368分,学姐考研经验攻略
苏科大规划考研
202苏州科技大学规划考研定向班--课程计划
【总规课堂】听说浙大今年考……——全网唯一,苏科2018总规快题公益直播解析课!
【快题解析系列】—苏科2014快题真题控规+修规【文末赠送基础素材】
【开放式街区快题冲刺】开放式街区AND“创智SOHO”快题总结—以苏科2017年为例
【快题干货】苏科2016年纺织厂更新规划设计
【干货】苏州科技大学12年中心区快题解析
【考研冲刺阶段】苏科规划,浙工大规划三套任务书来袭
【干货】苏州科技大学09年生活区快题解析
浙工大规划考研
【真题解析】18年浙工大规划考研快题真题—小城镇商业休闲中心快题
【快题解析系列 05】—深度解读工大2017居住区快题!
【理论+快题】2019浙江工业大学规划考研全年定向陪跑课程计划!
【经验分享】19浙江工业大学规划复试总分第三380!梁学长考研攻略!
【经验分享】19浙江工业大学规划初试总分第二魏学姐考研攻略!
【状元谈经验】18浙工大规划初试状元考研攻略!
【状元谈经验】18浙工大规划复试状元考研攻略!
【实务题】浙工大规划理论大题30分实务题详解!文末赠送工大原理解析答案!
【干货】浙江工业大学规划考研全攻略!
城乡规划快题解析
3套规划快题任务书解析视频,18山建大控规+03年浙大总规+10年安建大修规!
中心区生态示范街区快题总结—以大连理工2016年为例
【规划冲刺】3套规划快题任务书解析视频,10年南工大中心区+12年深圳大学居住区+15年华侨大学镇中心
【视频解析】湖南大学2013中心区+苏科2007居住区任务书讲解AND快题评图
3套规划快题任务书解析视频,包含控规+城市设计,快题我们只想做的更好!
【快题解析系列 09】—2014天津大学CBD城市设计!
【快题解析系列 08】—【夜读】17深规院招聘快题 文创服务中心!
【快题解析系列 07】—生态自然格局在快题中的处理方式!
【快题解析系列 06】—深度解读华南理工2015轨道交通站点规划快题!
【快题解析系列 05】—深度解读工大2017居住区快题!
【快题解析系列 04】—文化创意产业园 开放or封闭?
【快题解析系列 02】—3小时滨水文化步行街区快题【文末视频赠送】
【华南理工】老八校之华南理工12年快题解析!
其他院校考研经验分享
【中矿大规划考研】2019中国矿业大学复试榜眼胡学长考研经验干货分享!
【苏大规划考研】2019苏州大学快题状元叶学长考研经验干货分享!(附:苏大定向快题理论集训课程)
【经验分享】19青岛理工大学规划初试、复试快题第一138!周学姐考研攻略!
点击各校区了解详情
九华山手绘军团2019暑假全国班招生简章
杭州中心43期暑假班全国营简章(杭州营)老学员必看\表现班老学员以及方案班老学员优惠政策如下

01 如何选择院校
- 城市规划类针对性考研第一品牌 -
关于择校
是名校优先?
或是专业优先?
亦或者城市选择优先?
专业学长与老师给你专业的答疑!
【建筑规划学院】
城乡规划学设计
1、长按二维码,添加学长微信
2、在线咨询城乡规划类院校择校答疑
▼

▼
02 如何加入考研大家庭
- 城乡规划类针对性考研第一品牌 -
▼目标针对院校▼
同济大学、东南大学、南京大学、武汉大学、华中科技大学、武汉理工大学、南京工业大学、西安建筑大学、湖南大学、深圳大学、苏州科技大学、合肥工业大学、浙江大学、中山大学、中南大学、华侨大学、苏州大学、中国矿业大学、安徽建筑大学、浙江工业大学、南京林业大学、安徽农业大学、浙江工商大学等全国知名院校。
2020城乡规划考研各高校考研群
2020城乡规划考研公开课群(全国) 929386400

浙江省城乡规划考研交流群
浙大城市规划考研群(杭州) 338753699
浙工大城市规划考研群(杭州) 634389502
浙农林城市规划考研群(临安) 693738979

浙江省建筑学考研交流群
浙大建筑学考研群(杭州):418579355
浙工大建筑学考研(杭州):222625751
浙农林建筑学考研(临安):773119092

江苏省城乡规划考研交流群
南林城市规划考研群(南京) 225789963
苏大城市规划考研群(苏州) 272947721
苏科大城市规划考研群(苏州) 304530613
中国矿业大学城乡规划考研(徐州)677061507