
想知道国内外建筑大师的独门绝技吗?
想知道如何将大师的绝技化为己用吗?
抄绘→转化→应用
LB2005老师开篇强调

“案例解析的目的,旨在纠正同学们抄绘的误区,仅仅是做案例抄绘的复印机,没有解读案例;亦或抄绘了案例,但仍旧无法借鉴学习优秀的案例,将案例分析、转化、运用于自己的快题设计中。并且试图改变同学们在抄绘案例过程中低效甚至无效的学习方式。”
以苏州非物质文化遗产博物馆为例

建筑师:直向建筑地址:中国江苏苏州类别:博物馆建筑面积:14000.m2项目年份:2016
No.1
写在前面
面对分散的体量我们如何整合?面对完整的体量我们如何去划分?
这一次我们以董功董大师的苏非物质文化博物馆和他的其他作品为例,希望大家可以学会整与散的操作,感受秩序与层次的力量。
No.2
案例解析
1.设计初衷
非物质文化遗产博物馆坐落于苏州吴中区园艺博览会会址东侧。在园博会选址规划以前,这片水绕三方风景秀丽的土地属于一个离太湖不远的古老村庄。这个在场地附近的小乡村呈现了一派江南田园风光,粉墙黛瓦的小房子在大片开阔田野及紧邻的太湖美景的衬托下,既具有勃勃生机,又拥有一个相对自然的场所意向。
而园博园则是一个以自然为主题的大型展场,因此新的建筑该如何恰当地介入这方场地,强化建筑与自然的融合,成为了我们思考的起点,也给设计者带来了设计最初的启发。
A. 迎合环境-建筑与自然融合-植被覆盖
B. 与村落遥望-色彩与空间形制的呼应-风雨廊道串联功能体块

2草图分析
A. 消隐于自然:植被基座+盒子(适用于快题中)
B. 平面构成元素:点线面+实虚的互补关系
C. 空间意向的呈现:流线意向+空间所营造的场所感


3理论介绍
建筑现象学认为‘场所’实则是由具体事物所构成的整体,而非一种抽象的凭空想象,先入为主的领域,事物都在一定程度上和人发生关系,有人的参与才使得场所和环境产生意义。锚固其实是一种置入关系,正是置入了这个建筑,人和环境才有了更深层次的联系。
以设计者董大师的角度,叫做激发场地原有的一种能量(正是现象学核心范畴中的场所精神以及存在空间),正是这种能量,赋予了人与环境对话的新媒介,赋予了人,建筑,环境所构成的整体场所的新的生命力。
以个人角度将董大师归结于现象学有些武断,但是这样可能更利于我们分析这个建筑。将江南的院落,连廊的空间内涵,赋予了新的时代特色。与其说锚固点,更是一种激发点,去激发这个场所中人们的体验感与舒适感。

建筑整体平面图

图块秩序分析

中间交通空间的导向性,收与放的节奏感
3.设计策略
设计者的策略是按照功能的区别把此项目的综合体量拆分,并置入不同的院落,然后利用风雨连廊让他们彼此联接。这种空间格局的设置受到了传统建造方式的影响,长久以来时间已经证明了它和当地的生活方式及生活习惯的契合度。在江南多烟雨的气候条件下,人们可以通过连廊在不同的院落和体量之间随意移动而不必担心多变天气的影响。

盒子和连廊

连廊和院落

连廊的多层次关系
此外,每个院落各自的主体性空间都拥有不同的功能和特征,比如球形影院的竹木格栅表层会随着时间被藤蔓逐渐覆盖;博物馆的屋顶平台有一个呈现出云朵形状的喷雾装置;在登高塔上游客可俯瞰园博园全景;而面对银杏树林的餐厅则被赋予了一个亲水的特性。同时,在功能的需求下,以对自然干扰最小为出发点,我们利用覆土遮掩住了博物馆的建筑体量,进一步强化了建筑与自然的融合。
与之对应可应用到快题的手段:院落各自特性+盒子的变化操作
4.平面布置和空间组织

二层平面图:大部分消隐于自然土坡之下,对大环境最大限度的迎合,恢复自然美景。其中,通过不同主题的庭院和大体量建筑体块的结合来营造出自然和建筑空间的交流。同时,依靠轴线和秩序关系统领各个庭院区域,形成序列和节奏。
操作方法:
A结合首层的功能排布,设想体量,平面上升到形体
B塑造每个院落与形体的平面构成和空间关系(盒子和院落,以及串联二者的变化)

剖面图
剖面展现其空间节奏感和流线组织,同时我们能看到植物的降板和覆土,观景台的斜切形体与结构的统一
5.盒子的操作方法
对于盒子的变化,就是一种基于原型的形态构成。首先,大家必须把握好盒子和基座的比例关系,产生基座和盒子的前提是,基座要大于盒子的范围。其次,基座在一定程度上起到了统一盒子的作用,盒子的操作可以相对来讲多样化一点,比如材质,色彩,操作方式等。但如果做得变化较多,我们需要再一次回归统一,如妹岛和世和西泽立卫的金泽21世纪美术馆,他们会选择使用白色来统一,并且削弱基座与屋顶体块或是天窗的差异性。在快题中,我们切记不要做过多的手法,一个盒子我们寻找一个手法即可,并且这个手法不是单纯的形态操作,而是同院落,景观,空间秩序,人的体验等设计因素产生关系。

码头+餐厅

屋顶廊道上回看观景台+餐厅

A.盒子基本九宫格变化

B.盒子拆解组合

C立面构成:学会整形中操作,寻求比例和秩序,虚实对比,横纵对比,做出层次感。

No.3
案例转译
1盒子与院落关系
给予形体一种错动感。作为运动场的盒子不再是突兀的体块,临近它去设置庭院,不但给运动场带来了侧向的采光,同时为其提供了进入的缓冲空间和丰富的内外空间交融的体验。

2基座+盒子
当下面的功能空间排的比较满的时候,应该学会‘破整’,就像盘子中的水果或是菜肴。带有设计感的摆盘才会让盘子更体现出它作为容器的价值,菜肴与盘子才会相得益彰。因此需要我们在低层的整形上,引入庭院,引入体块,强调楼梯,并按照秩序和美学规则排布。

3建筑在自然消隐
这就相当于建筑披上了一层绿色的羽衣,用植物的斑斓来点缀屋顶的单一,用自然的多愁善感融化冰冷无情建筑。其实这就是一种统一,当有良好的自然景观之时,大家也不乏尝试一下这种手法。

No.4
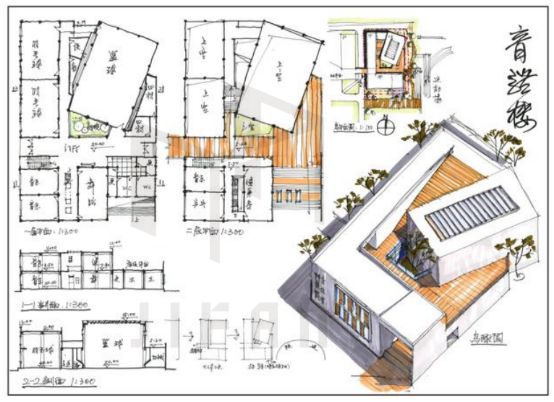
学员优秀作业展示

01

02

03

04

05

06

07

08

09

10

11

12

13

14

15

16

17

18

19

20

欢迎加入我们,几凡伴你走研路
几凡设计教育——西安分校

2021几凡西安考研交流群

几凡西安:官方客服
(综合全能)

几凡西安:黄华学长
(建筑快题)

几凡西安:列列学长
(建筑快题)

几凡西安:ZM学长
(建筑理论)
更多考研咨询请看往期回顾
建筑快题
秋季评图记|01商业类-社区小菜市场设计
秋季评图记|02内部空间-公园茶室设计
秋季评图记|03博物馆类-知青纪念馆设计
秋季评图记|04外部空间-革命纪念馆设计
建筑快题-案例转译-14 |杭州良渚文化博物馆
建筑快题-案例转译-15 | 荷兰泰特灵恩树林中的KVD住宅
建筑快题-案例转译-16 | Vilartagues中学
建筑快题-案例转译-17 | 圣·费尔南多·德·赫纳雷斯市政厅和市民中心
建筑快题-案例转译-18 |圣地亚哥·德·孔波斯特拉音乐教学中心
建筑快题-案例转译-19 |加达卡奥体育综合建筑
建筑理论
建筑理论-历史 | 一句话了解各式建筑风格
建筑理论-历史 | 从“建筑的散歩路”重读柯布的剖面
建筑理论-历史 |从屋顶到结构到台基,中国古建筑图解解析
百米冲刺|每日建筑理论知识点 NO.34
百米冲刺|每日建筑理论知识点 NO.35
百米冲刺|每日建筑理论知识点 NO.36
百米冲刺|每日建筑理论知识点 NO.37
百米冲刺|每日建筑理论知识点 NO.38
招生简章
招生简章 | 几凡西安2020寒假班
招生简章 | 几凡西安2020秋季提高陪跑班
几凡西安 | 2019暑期【建筑快题一期】课程回顾
课程回顾|几凡西安2019暑假【建筑理论】
几凡西安|建大考试大改革,考前100天如何复习?
西安建筑科技大学2020年翠英计划全程指南
高分经验贴
研途∣所谓考场开挂,不过是厚积薄发。
研途 | 我是如何取得西建大初复试总排名第三的?
研途 | 我是如何做到初试总分第一,总排名第二进入西建大的
研途 | 设计竞赛女神教你如何巧用快题逆袭总分第六
考场原图放送
几凡西安2019年考研红榜——附考后绘制考场高分原图(免费赠送2019年人手一本的西建大快题秘籍)
2019西建大复试建筑设计题目解析与考场高分原图
———— / END / ————