10月17日
慈溪市自然资源规划局发布了
明月湖幼儿园项目规划设计方案
详情如下
规划方案及建设工程规划许可公示
城建示【2019】第271号
慈溪市明月湖幼儿园拟申请办理慈溪市明月湖幼儿园项目规划设计方案及建设工程规划许可,现将规划方案及建设工程规划许可予以公示。公示时间自2019年10月19日起十日内,如有意见、建议,请在公示期间来电或来信到市行政服务中心规划窗口。涉及重大利害关系的,利害关系人如需申请听证,请在公示结束前向我局提出申请,听证申请人须提供姓名、住址、电话号码、身份证号码、签名及证明利害关系等事项的书面材料。若无异议,我局将依申请办理规划设计方案及建设工程规划许可证。市自然资源和规划局联系电话:63961746、63961747(上午8:00-11:30,下午1:30-5:00,节假日除外),来信请寄:慈溪市三北大街777号慈溪市行政服务中心96#窗口,邮编:315300。
慈溪市自然资源和规划局
二〇一九年十月十七日
根据规划设计
房子的造型是这样的

楼高三层 12班规模幼儿园
大概位置在这里

2019年5月31日,经过416轮激烈竞价、9.5小时“拉锯战”,明月湖A-05住宅地块最终由宁波卓发房地产有限公司(卓越)竞得。该地块出让时要求同步配建1所12班规模幼儿园、1处室内体育场馆设施,公建配套设施与所在地块须同步设计、同步验收并无偿移交相关部门。
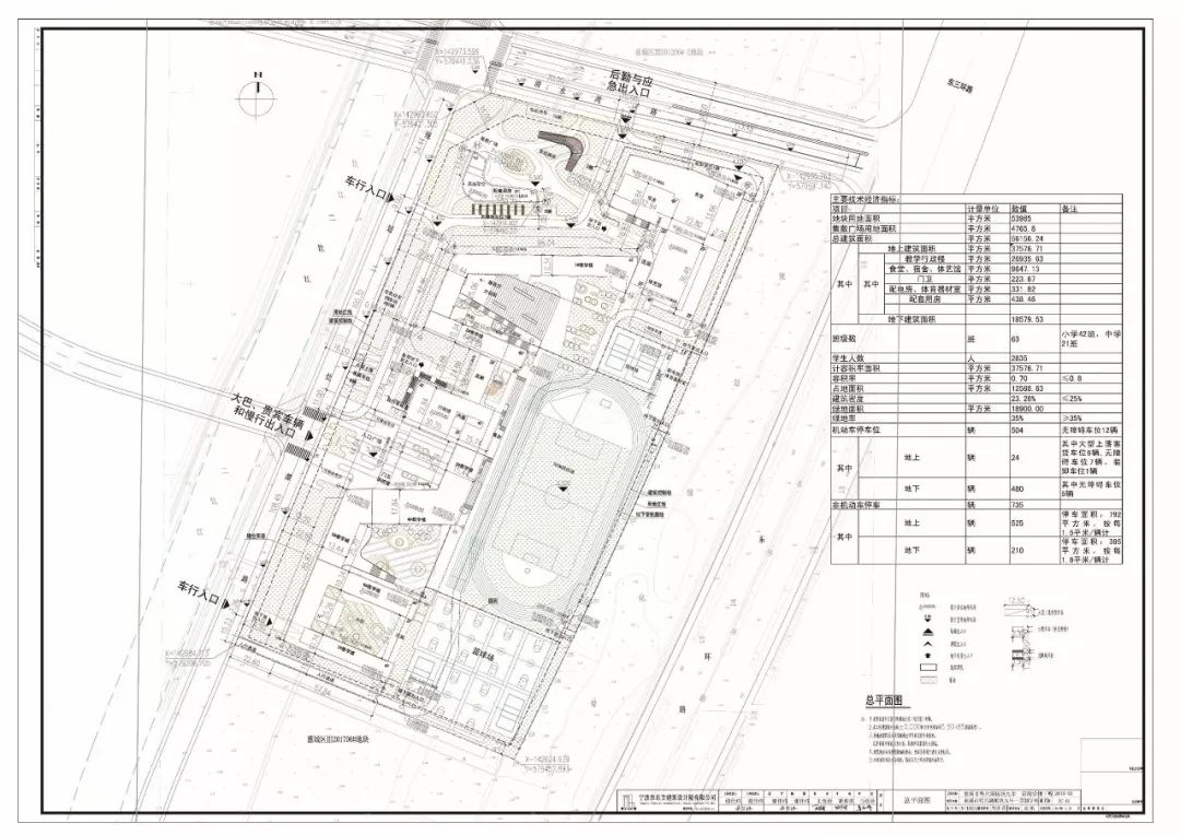
明月湖九年一贯制学校相关信息
2019年5月份
明月湖板块九年一贯制学校设规划设计图正式公示
平面设计图

正面俯视

教学楼设计

体育场设计

刚刚!明月湖板块九年一贯制学校设计方案曝光!

学长微评
就在10月16日,慈吉教育集团宣布也要在这附近建造一所外国语学校。重磅!慈溪这个投资15亿的外国语学校正式签约落地!引发了网友热议。我们扳扳手指,这里未来有(前湾慈吉外国语学校、明月湖九年一贯制学校、明月湖幼儿园),周边一公里范围内的宁波大学科技学院、慈溪中学、慈中书院,一个超大型的教育核心板块已经呼之欲出!再加上未来高铁站的修建,已经落成的慈溪森林公园,慈溪环创中心肯定是未来慈溪发展的核动力!
所以,对于这位网友的观点
学长不敢苟同

- END -
热门阅读

五年了!我们哪有时间去遗憾!
重磅!慈溪这个投资15亿的外国语学校正式签约落地!
探校 || 慈溪东部新城,一所大型优质幼儿园扬帆起航啦!
慈溪这位体育老师,被宁波教育点名表扬了!
在慈溪,遇到这样的老师真是一种幸福!
慈溪学子身影出现在这场盛典上,你认识他们吗?慈溪这位老师从东海之滨来到亚欧大陆中心, 践行初心之路!


感谢关注教育那点事儿

喜欢本条推送就点右下角“在看”